HOME > 売買物件/詳細
 

[NO. 887] 一戸建
地域 姫路市北部(JR山陽本線以北) 所在地 姫路市青山5丁目
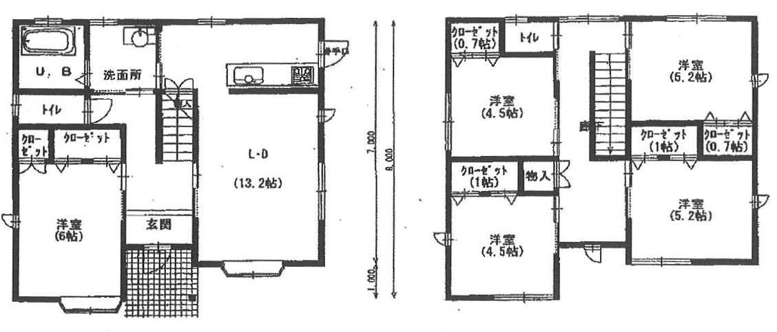
価 格 2,480 万円 間取り 5LDK
物件概要 中古戸建 管理費・修繕積立金
交通 JR余部駅 徒歩21分 築年月 平成26年9月
建物面積 122u 建物構造 木造2階建
土地面積 320.66u 土地権利/地目 所有権
用途地域 第一種中高層住居専用地域 建ぺい率・容積率 60%・200%
駐車場 有り 学校区
その他 現況/引渡可能日 空き家/即日
お問合せボタン




設 備 等
駐車場有 駐車場2台以上 土地50坪以上
土地100坪以上 建築条件無し土地 角地/角部屋
1階 2階より上階 最上階
延床70平米以上 駅徒歩10分以内 バス停徒歩5分以内
新築 ペット可 オール電化
二世帯向き 食器洗浄機 浴室に窓あり
浴室乾燥機 床暖房 オートロック
エレベーター リフォーム不要 即引渡可
双和不動産からのコメント等
キッチン台・洗面台・トイレ・クロス・フロアータイル
ハウスクリーニング リフォーム済み